4 chambre(s)
117.76 m2

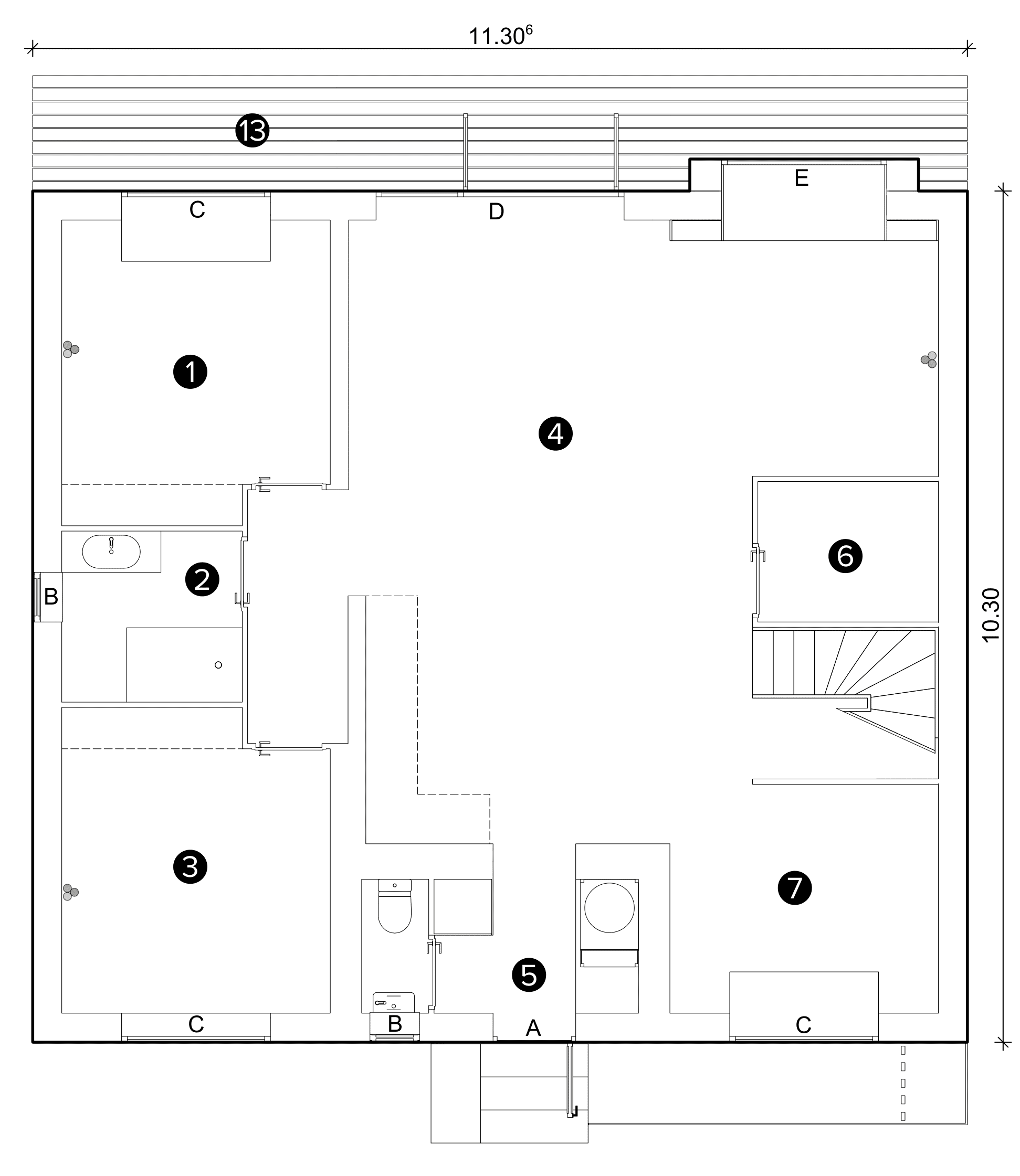
Cette maison M115 série 5E est composée de 4 chambre(s). Elle présente une surface de vie de 117.76 m2.

Comme toutes les maisons Ademeure, elle est lumineuse et spacieuse : elle dispose d’une terrasse de 15 m2 et est livrée prête à meubler.

Contactez-nous pour découvrir les options de personnalisation et la configurer avec un conseiller.

Contactez-nous pour découvrir les options de personnalisation et la configurer avec un conseiller.

La M est super équipée comparée aux maisons des autres constructeurs. Découvrez notre tableau comparatif ici.
Pour en savoir plus sur le prix, n’hésitez pas à consulter la section « Prix de la maison M« .

A noter : le prix est uniquement indicatif et varie en fonction de l’adresse du terrain sur lequel la maison est à construire.
Le prix ne comprend pas le prix du terrain et son terrassement éventuel, la taxe d’aménagement, la taxe foncière, les frais de raccordements aux réseaux, et certains autres frais

Composition

1
Chambre
11.30 m2
2
Salle d'eau
4.52 m2
3
Chambre
11.30 m2
4
Pièce de vie
45.50 m2
5
Entrée
5.23 m2
6
Cellier
3.73 m2
7
Chambre / Bureau
9.00 m2
8
Chambre
10.24 m2
9
Salle de bain
3.74 m2
10
Dégagement
2.85 m2
11
Chambre
9.00 m2
12
Terrasse non accessible
68.61 m2
13
Terrasse
15.00 m2

Huisseries

A Porte d'entrée 1,00 × 2,30 m
B Fenêtre (toilettes, salle d'eau) 0,60 × 0,95 m
C Fenêtre (salon, bureau, chambre) 1,80 × 1,20 m
D Baie vitrée 3,00 × 2,45 m
E Fenêtre habitée 2,00 × 2,70 m
Le mur concerné peut être personnalisé d’une autre couleur
(Option payante)

La M est BELLE

Vous pouvez choisir des options

Étape 1 sur 3

La M est bien pensée et très bien équipée

économie
en énergie

Isolant
extérieur

100% thermo-
dynamique

Pré-équipée extension de surface

Equipée
d'un bureau

PARAsismique

Isolation
Acoustique

Maison RE 2020

Murs finis

AIR FILtré automatiquement

Purificateur d'eau à 99%

Découvrez d'autres Modèles de maisons M inspirants

Configurez votre maison de rêve avec un conseiller

La maison M ci-dessus vous plait ? Laissez-nous vos coordonnées : un conseiller prendra contact avec vous et vous transmettra notre catalogue complet avec 16 modèles de maisons, leurs éléments de personnalisation et options.

Formulaire de contact

Sélectionner le job*
Nom*
Prénom*
Téléphone*
e-mail*
Adresse*
Commentaire